ARMURES

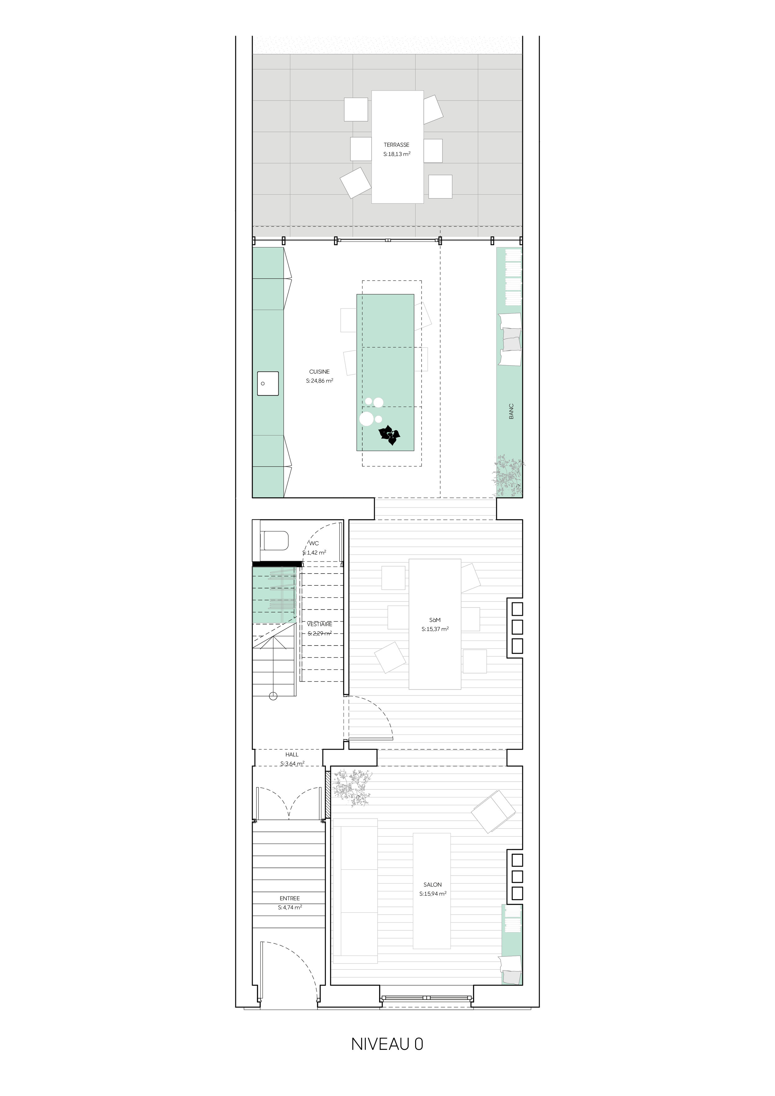
Située avenue des Armures, dans le quartier de l’Altitude Cent entre Forest et Uccle, ce projet comprend la rénovation complète d’une habitation bruxelloise typique. Les anciens volumes annexes font place un nouveau volume largement ouvert sur le jardin.

Le projet est étudié pour limiter sont impact sur le bâti existant. Les interventions sont comptées et les éléments architecturaux qui caractérisent l’habitation sont maintenus.

 
 
Précédent
Précédent

HESTE

Suivant
Suivant

VICINAL