ANSO

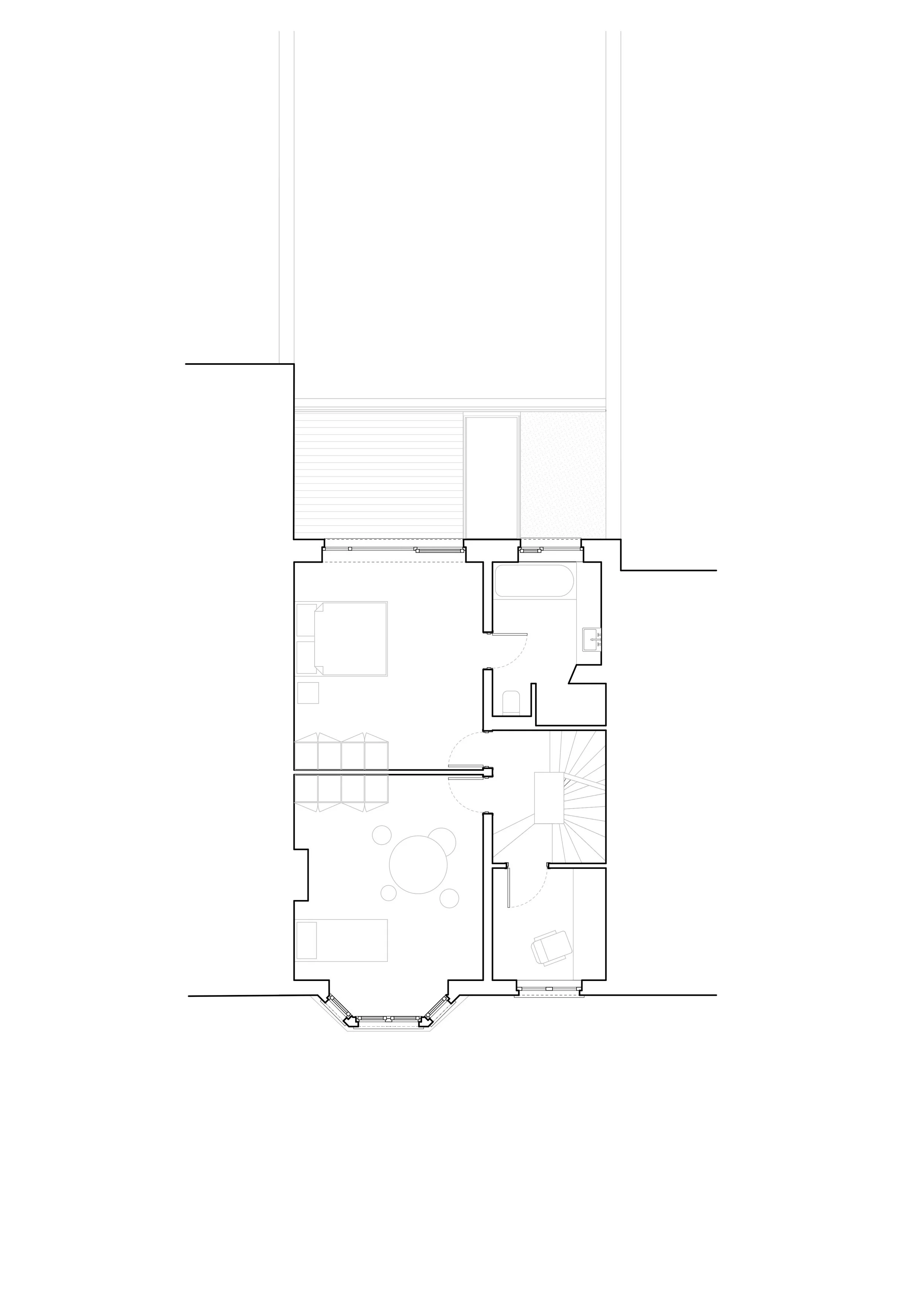
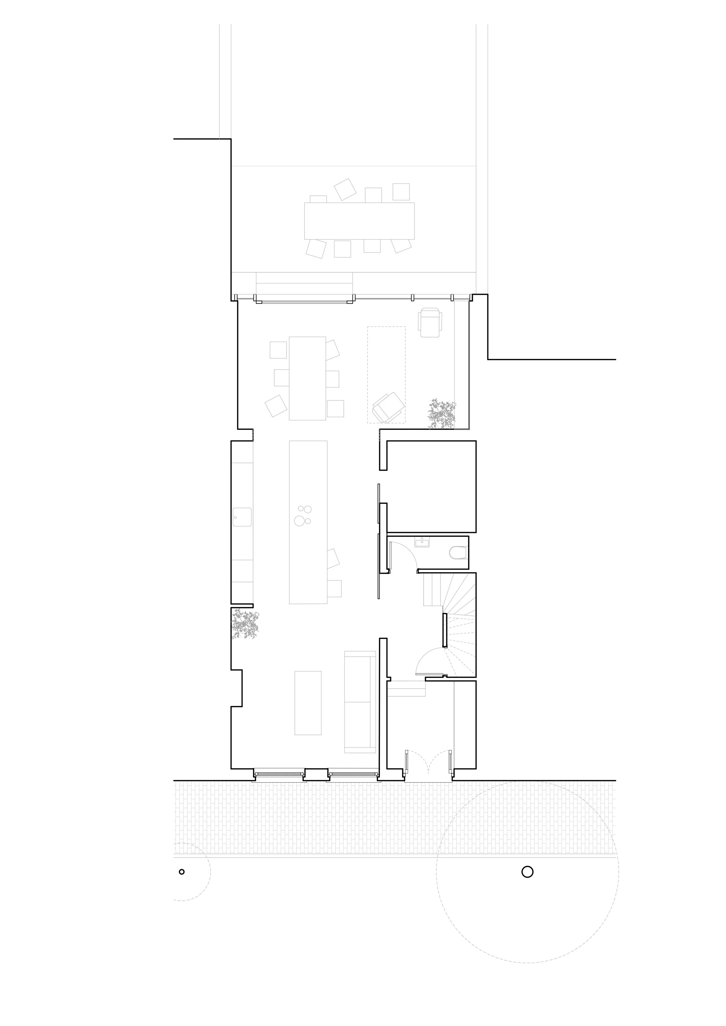
Le projet ANSO vise la transformation et l’extension d’une maison unifamiliale à Auderghem.

Les différentes annexes arrières font place à une nouvelle extension complètement ouverte sur le jardin tandis qu’une grande lucarne vient en toiture créer un espace de repos ouvert sur le reste du quartier créant de nouvelles vues et amenant la lumière au coeur de la circulation.

Entrepreneur :  HARACINA construct

Photo : Nicolas da Silva Lucas

Localisation : Auderghem, Bruxelles

 
Précédent
Précédent

CHARLES

Suivant
Suivant

PEUPLIERS